Structural Design & Review
구조적 안전성을 확인합니다
구조설계 · 구조검토
건축구조물에 작용하는 하중을 분석하여 부재의 응력, 처짐, 안전성을 검토하고,
설계안 및 보강안의 구조적 안전성을 확인합니다.
서비스 항목
-
구조설계 (VE설계)
신축 · 증축 구조계획
-
건축물 구조검토
구조 안전성 검토
-
현장기술지원
현장 구조 기술 지원
-
증축 · 리모델링
기존 구조 변경 검토
-
하중 변경 검토
장비 설치 · 용도변경
-
벽체 철거 검토
철거 가능 여부 판단
구조설계 전화 상담
1660-1364
VE설계
구조설계 최적화
구조검토
응력 · 처짐 · 안전성
현장지원
기술지원 및 자문
보고서
구조도면 · 검토서 제공
Services
와이즈의 구조설계 · 구조검토 서비스
신축, 증축, 리모델링, 하중 변경, 벽체 철거, 보강 계획 등 구조설계 및 구조검토가 필요한 다양한 상황에 대응합니다.
구조설계 (VE설계)
신축 및 증축 건축물에 대한
구조계획 및 최적화 설계
- 구조계획 수립 및 부재 산정
- VE(Value Engineering) 구조 최적화
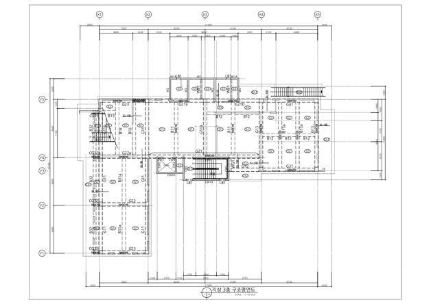
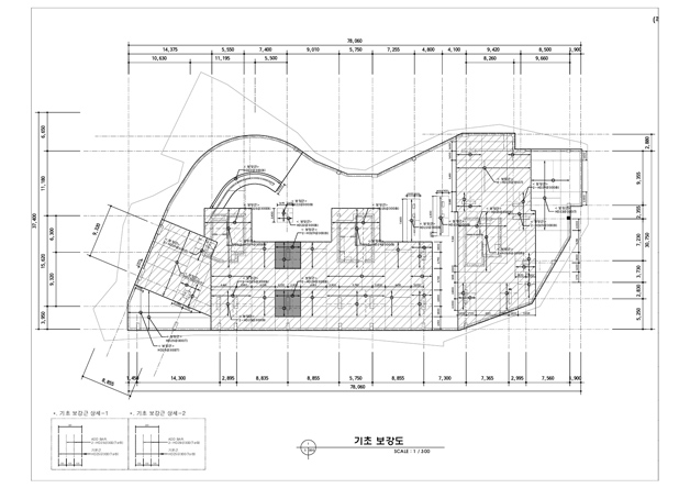
- 구조도면 작성 (구조평면도 · 상세도)
- 구조 해석 모델 구축 및 검토
- 구조 안전성 확인 및 보고서 제공
건축물 구조검토
기존 건축물 또는 설계안에 대한
구조 안전성 검토
- 부재별 응력 검토 (보·기둥·슬래브)
- 처짐 및 변형 검토
- 구조적 안전성 판단 및 취약부 도출
- 설계안의 타당성 검토
- 필요 시 보강안 및 대안 제안
현장기술지원 · 특수검토
현장 조건에 맞는 기술 지원 및
특수 구조 검토
- 증축 · 리모델링 구조검토
- 하중 변경 검토 (장비 설치 · 용도변경)
- 벽체 철거 가능 여부 판단
- 보강 검토 및 대안 제안
- 현장 구조 기술 자문 지원
Document
건설공사 계획서
와이즈의 구조설계 및 구조검토 현장 업무 사례를 소개합니다.
Gallery
현장 · 업무 사진
와이즈의 구조설계 및 구조검토 현장 업무 사례를 소개합니다.
Check Items
구조설계 · 구조검토 시 주요 확인 사항
건축구조물의 구조 해석을 수행하여 다음과 같은 항목을 검토합니다.
구조 안전성과 사용성 및 시공성을 검토하고 최적의 구조 방안을 제시합니다.
- 응력 검토
- 처짐 · 변형
- 구조 안전성
- 취약부 판단
- 타당성 검토
- 보강안 제안
해석 결과는 보고서 또는 검토서 형태로 제공됩니다.
01
부재별 응력 검토
보, 기둥, 슬래브 등 각 구조 부재의 응력 상태를 해석하여 허용 범위 내 여부를 판단합니다.
02
처짐 및 변형 검토
하중 작용 시 발생하는 처짐과 변형량을 검토하여 사용성 기준 충족 여부를 확인합니다.
03
구조적 안전성 검토
설계 하중 조건에서 전체 구조물의 안전성을 종합적으로 검토합니다.
04
취약부 판단
구조 해석 결과를 바탕으로 위험 가능성이 높은 부위를 도출하고 원인을 분석합니다.
05
설계안 타당성 검토
제안된 설계안이 구조적으로 적정한지 검토하고 수정이 필요한 부분을 확인합니다.
06
보강안 및 대안 제안
문제가 확인된 경우 보강 방향 또는 대안적 구조 방안을 함께 제안합니다.
제공 내역
구조도면
구조평면도 · 상세도
부재별 검토
응력 · 처짐 · 안전성
취약부 판단
위험 부위 도출 및 분석
보강 · 대안 제안
필요 시 보강 방향 제시
해석 결과 보고서
보고서 · 검토서 제공
진행 절차
예약 접수부터 결과 제공까지 체계적인 프로세스로 진행됩니다.
STEP 01
예약 접수
구조설계 또는 구조검토가
필요한 내용을 접수합니다.
STEP 02
담당자 사전 상담
업무 목적, 대상 구조, 현장 조건
등을 확인합니다.
STEP 03
자료 확인 및 범위 확정
제공 자료를 검토하고 구조해석 및
설계 범위를 확정합니다.
STEP 04
구조설계 및 해석 수행
조건에 맞는 구조설계 및
해석을 진행합니다.
STEP 05
결과 설명 및 자료 제공
결과를 설명드리고 보고서 또는
검토서로 자료를 제공합니다.
Why It Matters
구조설계와 구조검토가 중요한 이유
건축물은 사용 목적, 하중 조건, 구조 형식에 따라 안전성 검토 기준이 달라질 수 있습니다.
증축 · 리모델링 시 사전 검토 필수
기존 구조물에 하중이 추가되거나 구조 형식이 변경될 경우 사전 구조검토 없이 진행하면 안전 문제 또는 추가 보강 이슈가 발생할 수 있습니다.
하중 변경 · 용도변경 시 구조 재검토
장비 설치, 용도변경, 적재하중 증가 등 기존 설계 조건이 달라지는 경우 구조적 안전성을 반드시 재확인해야 합니다.
벽체 철거 전 구조 판단
내력벽 또는 구조 부재를 철거하기 전에 구조 역할 여부를 반드시 확인해야 합니다. 무단철거 시 건물 전체의 안전성에 영향을 줄 수 있습니다.
위험 요소 사전 확인 및 보강 제안
와이즈는 구조적 검토를 통해 위험 요소를 사전에 확인하고, 필요 시 보강 방향까지 함께 제안합니다.
특히 증축, 리모델링, 용도변경, 장비 설치, 벽체 철거와 같이 기존 조건이 달라지는 경우에는 사전 구조검토 없이 진행할 경우 안전 문제나 추가 보강 이슈가 발생할 수 있습니다. 와이즈는 구조적 검토를 통해 위험 요소를 사전에 확인하고, 필요 시 보강 방향까지 함께 제안합니다.
구조설계 및 구조검토가 필요하신가요?
신축 구조계획부터 증축, 리모델링, 하중 변경, 벽체 철거, 보강 검토까지
현장 조건에 맞는 구조설계 및 구조검토를 지원합니다. 와이즈와 상담해보세요.
구조 안전을 위한 구조설계 전문가가 정확하게 검토해 드립니다.


